Baugrundstücke mit Baugenehmigung für ein MFH







- Objektart
- Grundstück
- Objekttyp
- Wohnen
- Vermarktungsart
- Kauf
- PLZ
- 74679
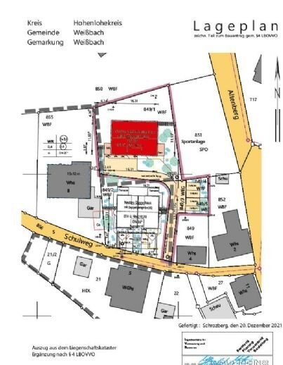
- Ort
- Weißbach
- ImmoNr
- 273
- Grundstücksgröße
- ca. 908 m²
- Kaufpreis
- 199.000,00 €
Beschreibung
Bauträger Aufgepasst!Unser einmaliges Angebot umfasst ein Baugrundstücke mit erteilter Baugenehmigung für ein 5-Familienhaus mit 6 PKW-Stellplätze. Das Grundstück ist voll erschlossen.
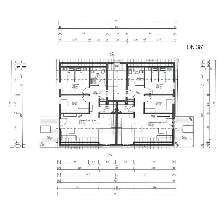
Das Gesamtgrundstück weist eine Größe von 908 m² aus.
Durch eine Nutzungsänderung kann die erteilte Baugenehmigung individuell und persönlich abgeändert werden. Es besteht kein Bauzwang.
Gerne können Sie das komplette Baugesuch über uns einsehen. Wir freuen uns auf Ihre Anfrage.
Lage
Die Gemeinde Weißbach befindet sich inmitten der Genießer- und Weltmarktführerregion Hohenlohe, etwa 10 km westlich der Kreisstadt Künzelsau.Aufgrund ihrer zentralen Lage, einem hervorragenden Angebot an Arbeitsplätzen sowie einer guten Infrastruktur wie z.B. Kleinkinderbetreuung, Kindergärten, Grundschule, Bürgerzentrum, Sportanlagen, Tennisplätzen, Einkaufsmöglichkeiten, Gastronomie und anderem mehr ist die Gemeinde Weißbach ein attraktiver Gewerbestandort und eine beliebte Wohngemeinde. Die idyllische Landschaft trägt ein übriges dazu bei, dass sich hier jeder rundum wohl fühlen kann.Die Ortschaft Weißbach ist der Hauptort der gleichnamigen Gemeinde. Sie liegt direkt am Kocher und ist über die Landesstraße 1045 gut an das überregionale Verkehrsnetz angebunden. Auch der dem Verlauf des Flusses folgende Kochertal-Radweg führt hier durch. Er ist Teil des Kocher-Jagst-Radwegs, einem der beliebtesten Radwege Deutschlands.Ausstattung
Die Wohneinheiten haben eine gesamte Wohnfläche von 357m² zuzüglich 102 m² Nutzfläche.Die Wohnflächen der einzelnen Wohnungen teilen sich wie folgt auf:
2 x 66,45 m²
2 x 77,49 m²
1 x 69,16 m²



