Charmante, hochwertig sanierte Wohnung mit Balkon in ruhiger Lage










- Objektart
- Wohnung
- Objekttyp
- Dachgeschoss
- Vermarktungsart
- Kauf
- PLZ
- 74575
- Ort
- Schrozberg
- ImmoNr
- 902
- Wohnfläche
- ca. 75 m²
- Anzahl Zimmer
- 3
- Anzahl Badezimmer
- 1
- Kaufpreis
- 170.000,00 €
- Baujahr
- 1961
- Endenergiebedarf
- 135,7 kWh/(m²a)
- Energieausweis
- Bedarfsausweis
- Energieausweis gültig bis
- 29.07.2032
- Energieeffizienzklasse
- E
- Außen-Provision
- 2,975% inkl. MwSt.
Beschreibung
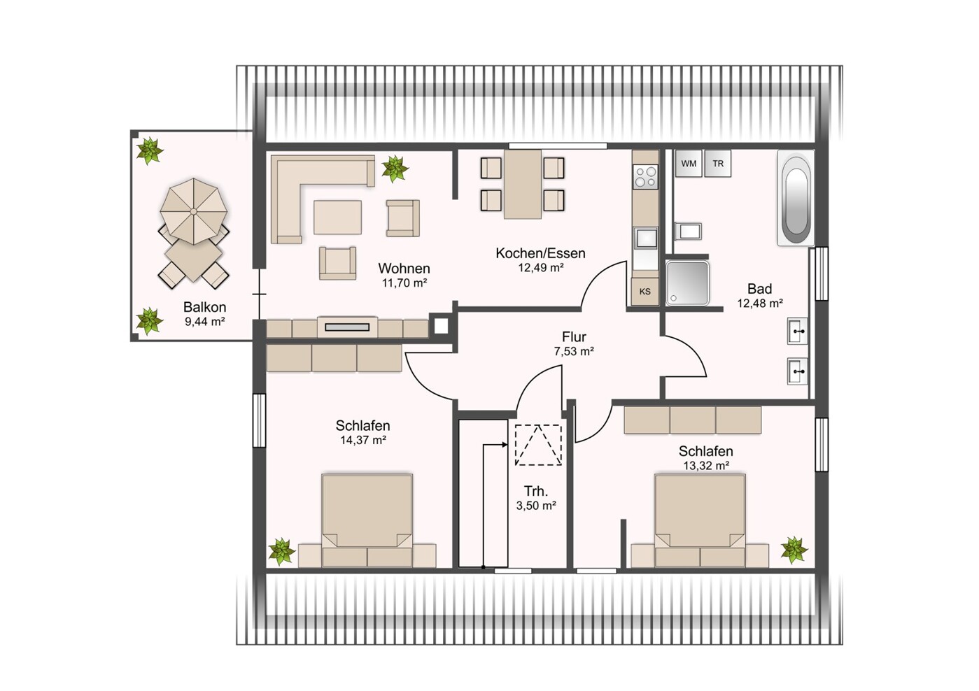
In idyllischer Lage von Leuzendorf erwartet Sie diese hochwertig ausgestattete 3-Zimmer-Wohnung mit ca. 75 m² Wohnfläche. Die Einheit befindet sich in einem gepflegten Mehrparteienhaus und wurde im Jahr 2012 umfassend saniert. Neben einem durchdachten Grundriss überzeugt die Wohnung durch stilvolle Details, moderne Technik und eine großzügige Raumgestaltung.Ein besonderes Highlight ist der ca. 10 m² große Balkon, der zum Entspannen im Freien einlädt. Der Dachspitz bietet zusätzliche praktische Lagerfläche, während ein separater Kellerraum weiteren Stauraum schafft.
Lage
Die Wohnung liegt in ruhiger, naturnaher Umgebung im Schrozberger Ortsteil Leuzendorf – ideal für alle, die ländliche Ruhe mit guter Anbindung kombinieren möchten. Spazierwege, Felder und Natur beginnen direkt vor der Tür. Einkaufsmöglichkeiten, Schulen und ärztliche Versorgung sind in den umliegenden Ortschaften schnell erreichbar. Die Lage bietet eine perfekte Mischung aus Entspannung und Alltagstauglichkeit.Ausstattung
Wohnfläche: ca. 75 m²Sanierung: 2012 umfassend modernisiert
Zusätzliche Nutzfläche: Dachspitz als Lagerfläche
Balkon: ca. 10 m²
Keller: separater Kellerraum
Grundstück: gemeinschaftlich genutzt
Bezugsfrei ab: sofort
Kaufpreis: 170.000€



